ENCUENTRA TU OPORTUNIDAD
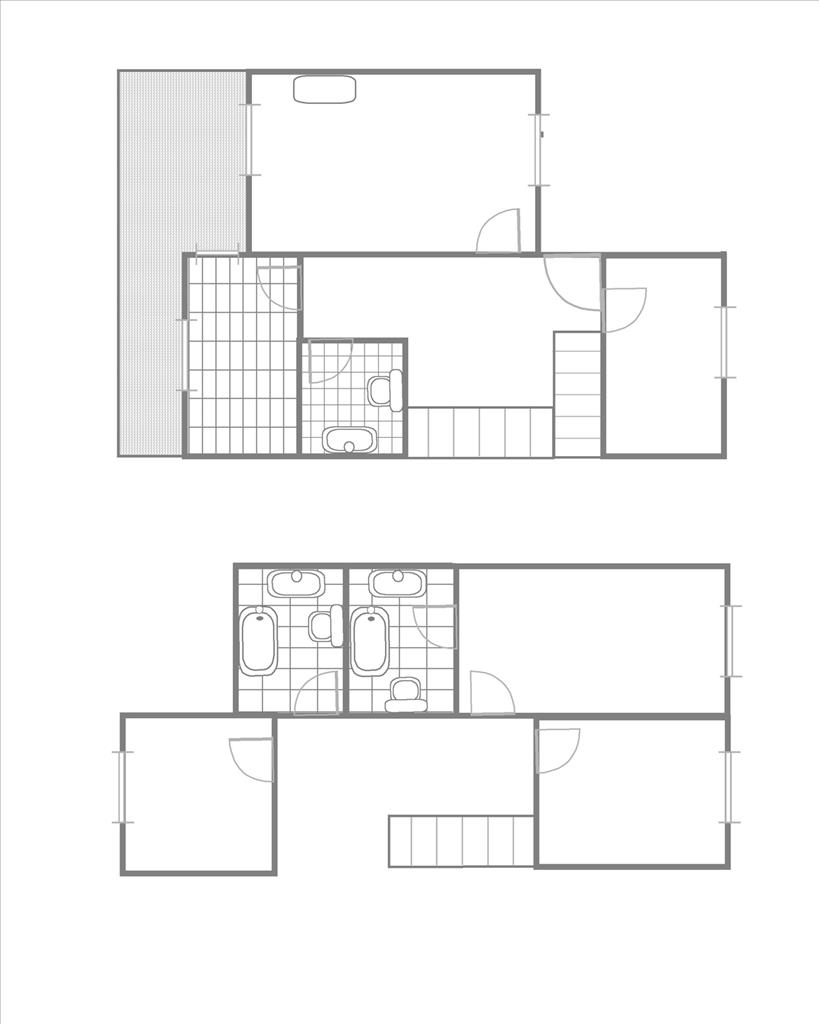
122 m2 | 3 hab. | 2 baños
¡ Oportunidad !
Vivienda unifamiliar adosada con amplio patio a la venta en Carrión de los Céspedes, Sevilla.
La vivienda consta de dos plantas. La planta baja está distribuida en salón-comedor, un dormitorio, aseo, cocina y patio delantero y trasero. La planta primera consta de dos dormitorios, dos cuartos de baño y balcón.
La vivienda posee suelos de gres, ventanas de aluminio, armarios empotrados, cocina amueblada... Todo ello en buen estado de conservación. Precisa pequeñas actualizaciones, pero ofrece muchas posibilidades.
Muy bien comunicado por carretera (SE-637) y transporte público. A menos de 400 metros de la estación de tren Carrión de los Céspedes.
Próximo a todo tipo de servicios e infraestructuras como centros educativos (IES Virgen del Rosario), comercios, supermercados, farmacias, zonas verdes...
SIN COMISIÓN
Referencia: VIVANTIAL-17589










